Používame cookies

Súbory cookie a ďalšie technológie sledovania používame na zlepšenie vášho zážitku z prehliadania našich webových stránok, na to, aby sme vám zobrazovali prispôsobený obsah a cielené reklamy, na analýzu návštevnosti našich webových stránok a na pochopenie toho, odkiaľ naši návštevníci prichádzajú. Viac info

 

BYTOČ RK - radový 2-podl. mezonet v Taliansku - ostrov Grado

Ulica: Grado
Druh: Byty
Typ: Predaj
Typ bytu: Rekreačný apartmán
Iné:
169 000 €

Popis nehnuteľnosti

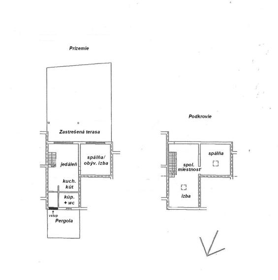
V Taliansku na ostrove Grado neďaleko mora a pláže ponúkame na predaj radový 2-podlažný mezonet (rekreačný dom) s vlastným vchodom. Apartmán ma rozlohu 64 m2 sa nachádza v rekreačnom rezorte s reštauráciou, bazénom, ihriskom a tenisovými kurtami.

Apartmán je dvojúrovňový, na prízemí so samostatným vstupom nájdeme obývaciu časť s kuchynským kútom a jedálenskou časťou, spálňu s výhľadom na verandu/terasu, kúpeľňu so sprchovacím kútom. Vnútorné schodisko vedie do podkrovia, ktoré sa podľa potreby využíva ako spálne alebo relaxačná zóna. Vykurovanie zabezpečuje klimatizácia s tepelným čerpadlom a pred objektom je vyhradené parkovacie miesto. Možnosť využivať všetky výhody rekreačného rezortu kúsok od centra Grada. Cena: 169.000 € (+ poplatky). 

Kontakt: Rastislav Tóth - 0903 649 808, Email: toth@bytoc.sk   

V prípade, že by Vás táto ponuka oslovila, vieme zabezpečiť prostredníctvom nášho etablovaného talianskeho spolupracovníka:
- kompletné poradenstvo pred kúpou až po odovzdanie nehnuteľnosti (vrátane zahlásenia elektriky, vody a pod.)
- následnú správu nehnuteľnosti počas celého roka, resp. počas vašej neprítomnosti (vrátane upratovania)
- celoročné zastupovanie voči úradom

Podľa talianskych zákonov kupujúci zaplatí (podrobnejšie o poplatkoch v časti "informácie"):
- kúpnu cenu nehnuteľnosti
- sprostredkovateľský poplatok 3 % z kúpnej ceny
- notársky poplatok (odmenu)
- registračnú daň z nehnuteľnosti
- katastrálnu daň

Komunikácia a všetky náležitosti aj na talianskej strane prebehnú v slovenskom jazyku!

Nenašli ste v našej ponuke na Grado a okolí nehnuteľnosť podľa vašich predstáv? Viac nehnuteľností nájdete na www.bytoc.sk, alebo nám napíšte a my sa pokúsime na ostrove vyhľadať dom, byt, apartmán, hotel, alebo penzión podľa vami zadaných kritérií!

Informácie o kúpe nehnuteľnosti v Taliansku nájdete na stránke www.bytoc.sk: Informácie o kúpe

Vlastnosti

Status:
aktívne
Vlastníctvo:
osobné
Úžitková plocha:
64 m2
Stav:
pôvodný stav
Počet izieb:
3
Terasa:
áno
Verejné vonkajšie parkovanie:
áno
Pozícia:
Prízemie
Celková plocha:
64 m2
Počet terás:
1
Počet vonkajších parkovacích miest:
1
Status:
aktívne
Vlastníctvo:
osobné
Úžitková plocha:
64 m2
Stav:
pôvodný stav
Počet izieb:
3
Terasa:
áno
Verejné vonkajšie parkovanie:
áno
Pozícia:
Prízemie
Celková plocha:
64 m2
Počet terás:
1
Počet vonkajších parkovacích miest:
1

Informatívna úverová kalkulačka

Pozrieť na mape

Maklér

Radi Vám poradíme

Podobné nehnuteľnosti